
| Lage | Bergblick, OT Eibau |
| Bebauung | Die Grundstücke sind unbebaut und befinden sich im Bereich des gültigen Bebauungsplans „Brachfläche Damino II / Bergblick“. Mit dem Erwerb ist eine Bauverpflichtung zur Errichtung eines Einfamilienhauses unter Beachtung des Bebauungsplans innerhalb von drei Jahren verbunden. |
| Erschließung | Verkehrsmäßig sind die Grundstücke über die Straße Bergblick erschlossen. Die medientechnische Ver- und Entsorgung im Gebiet mit Glasfaser, Strom, Gas, Fernmelde, Trink- und Abwasser ist in der Umgebung vorhanden und kann zu den Grundstücke geführt weden. Für die Beseitigung des anfallenden Regenwassers auf den Grundstücken sind die Grundstückseigentümer verantwortlich (z.B. Sammlung in Zisternen, Versickerung breitflächig über die belebte Bodenzone) |
| Kaufpreis | 35,00 €/m² |
| Kosten: | Die Kosten für den Kaufvertrag sowie die Vertragsnebenkosten sind durch die Käufer zu tragen. Am Wohnstandort Bergblick ist nach Fertigstellung der Bautätigkeiten die Abmarkung der Grundstücke noch erforderlich. Die damit entstehenden Kosten sind von den Käufern anteilig zu tragen. |
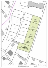
| Lage | Gemarkung Niedercunnersdorf Neue Sorge |
| Grundstücksfläche | siehe Lageplan |
| Bebauung | Die Grundstücke sind unbebaut und befinden sich im Bereich des gültigen Bebauungsplanes Niedercunnersdorf " Neue Sorge II (2. Änderung). Der Bebauungsplan mit seinen Festsetzungen ist unter folgenden Link einsehbar: Mit dem Erwerb ist eine Bauverpflichtung zur Errichtung eines Einfamilienhauses unter Beachtung des Bebauungsplans innerhalb von 5 Jahren verbunden. |
| Erschließung | - die verkehrsmäßige Erschließung erfolgt über die noch zu errichtende öffentliche Straße - die medientechnische Ver- und Entsorgung im Gebiet mit Strom, Gas, Fernmelde, Trink- und Abwasser liegt im Straßenbereich an - die Beseitigung des Regenwassers erfolgt zentral |
| Kaufpreis | Mindestgebot 45,63 €/m² |
| Kosten: | Die Kosten für den Kaufvertrag sowie die Vertragsnebenkosten trägt der Käufer. |